Zum Inhalt springen

URBACH – KLASSE HAUS FÜR DIE GANZE FAMILIE, GUTE, SONNIGE WOHNLAGE

    KaufimmobilienMehrfamilienhausURBACH – KLASSE HAUS FÜR DIE GANZE FAMILIE, GUTE, SONNIGE WOHNLAGE

    URBACH – KLASSE HAUS FÜR DIE GANZE FAMILIE, GUTE, SONNIGE WOHNLAGE

    • 5 Schlafzimmer
    • 3 Badezimmer
    679.000€
    Infos anfordern

    Grundlagen

    • Kategorie:
    • Schlafzimmer: 5
    • Badezimmer: 3
    • Toiletten: 2
    • Zimmer insgesamt: 9
    • Garten: Garten, Terrasse, Loggia
    • Immobilienzustand: Gepflegt
    • Baujahr: 1982
    • Typ:

    Heizung

    • Heizköpertyp: Heizkörper
    • Heizungstyp: Zentralheizung Oel
    • Energieausweis: Liegt bei Besichtigung vor

    Provision

    • Provision: Ja
    • Prozente und Zusatz: 3,57 % inklusive gesetzlicher Mehrwertsteuer

    Beschreibung

    • Status:
    • Beschreibung:

      Objektbeschreibung:

      Das Wohnhaus wurde in Massivbauweise erstellt mit einer Wandstärke laut Plan von 30 cm.

      Grundstücksgröße ca. 530 m², Wohnfläche Gesamt 214 m², Nutzfläche 248 m².

      Sämtliche Decken sind in Stahlbeton ausgeführt. Die Fassade wurde verputzt. Dachrinnen und Verwahrungen in Kupfer. Dacheindeckung mit Tondachziegeln und Schneefanggittern.    Das Dach verfügt über eine Aufdachdämmung. Kunststofffenster mit Rollladen zum Teil mit elektrischer Steuerung und im EG abschließbar. Dachflächenfenster Fabrikat Roto mit Rollos. Zwei einzügige und ein zweizügiger Kamin. Angebaute Garage mit Flachdach und Kupferverwahrung. Kelleraußentreppe zum Garten. Schmiedeeisernes Gartentor links am Haus. Im Garten stehen zwei Geräteschuppen. Terrasse im EG mit Windschutz und Sichtblende. Bühnenbereich mit Ausbaupotential (ohne Gewähr).

      Energiekennwert: BA aus 2025, 170,1 kWh/(m²x a) Heizöl, Bj. Heizung 2004, Effizienzklasse F.

      Für das Wohnhaus liegt eine zertifizierte Wohn - Nutzflächenberechnung vor !

      Ausstattungsmerkmale: 

      Malerarbeiten: Überwiegend Mustertapeten, teilweise Raufaser. Im UG sind die Wände zum Teil verputzt oder mit einer Holzschalung versehen.

      Hochwertige Marmortreppe vom UG zum DG, vom EG ins DG als Podest Treppe erstellt.

      Zum Spitzboden führt eine massive Holztreppe.

      Bodenbelag: Wohn -und Schlafbereiche überwiegend Teppichboden, Bäder Toiletten gefliest.

      Die Terrasse mit einem Granitbelag verfügt über eine elektrische Markise. Ebenso die Markise im Bereich vor der großzügigen Wohnzimmerverglasung. Die Loggia im DG ist ebenfalls mit einer Markise ausgestattet und hat zusätzlich noch Stauräume im Drempelbereich (siehe Plan). Alle Stockwerke bzw. Wohnungen verfügen über eine Sprechanlage, Kabelanschluss vorhanden. Im DG ist eine Küche nebst Einrichtung vorhanden. In der kleineren Einheit ist eine Küchenzeile vorbereitet. Im EG wurde die Kücheneinrichtung zum Großteil entfernt.

      Sanitärausstattung:

      UG: Im Untergeschoss befindet sich ein Gäste-WC mit Waschbecken.

      EG: Gäste- WC, Tagesslichtbad mit Dusche, Badewanne, Bidet, WC u. Doppelwaschtisch.

      DG: 2 Tageslichtbäder mit Badewanne und Duschbrause, WC und Waschtisch.

      Heizung: Niedertemperatur-Ölzentralheizung mit Heizkörpern, Fabrikat Viessmann aus 2004 mit ca. 290 l Warmwasserspeicher. Doppelwandiger Außentank Neu 2004 mit 6500 l Fassungsvermögen. Solaranlage ca. 4,8 m² mit 800 l Pufferspeicher. Holzkessel außer Betrieb.

      Nebenräume:  Technikraum, 2 Abstellräume, Waschküche mit Spüle, Saunaraum vorbereitet, sehr großer Hobbyraum mit Parkettboden, guter Belichtung und Lichtinstallation. Die Räume und der Flur im Keller sind alle gefliest.

      Parkierung: Einzelgarage mit Sektionaltor und elektr. Antrieb, Stellplatz links am Grundstück und vor dem Haus.

      Zu Ihrer Information:

      Im Dachgeschoss sind 2 Wohnungen vorhanden. Diese können auch zu einer großen 4 Zi. Wohnung mit 2 Bädern umgestaltet werden !

      Zu Beachten: 

      Alle genannten Angaben zum Objekt beruhen auf den Angaben des Eigentümers. Irrtum vorbehalten.

      Ihr Ansprechpartner: Thilmann Knorpp - 07181-9937520 -  Rufen Sie an und vereinbaren Ihren persönlichen Besichtigungstermin!

      Makler Courtage:

      3,57 % inklusive der gesetzlichen Mehrwertsteuer des notariell verbrieften Kaufpreises am Tage der Verbriefung. Fällig beim Erwerb für unsere Nachweis- und/oder Vermittlungstätigkeit, zahlbar innerhalb von 8 Tagen nach notarieller Verbriefung. Die Provision ist auch dann geschuldet, wenn eine mit Ihnen gesellschaftlich oder familiär verbundene dritte Person, Partner des von uns nachgewiesenen Vertrages wird.

       

      Alle Beschreibung anzeigen

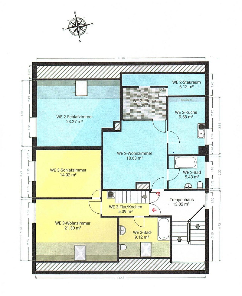
    Grundrisse

    Fragen Sie einen Agenten nach diesem Haus.

    Telefon
    By clicking the «INFOS ANFORDERN» button you agree to the Nutzungsbedingungen and Datenschutzpolitik

    Share this property

    Kopieren

    Oder teile mit

    Powered by Estatik

    Reset password

    Geben Sie Ihre E-Mail-Adresse ein und wir senden Ihnen einen Link zum Ändern Ihres Passworts.

    Powered by Estatik
    Knorpp Immobilien
    Datenschutz-Übersicht

    Diese Website verwendet Cookies, damit wir dir die bestmögliche Benutzererfahrung bieten können. Cookie-Informationen werden in deinem Browser gespeichert und führen Funktionen aus, wie das Wiedererkennen von dir, wenn du auf unsere Website zurückkehrst, und hilft unserem Team zu verstehen, welche Abschnitte der Website für dich am interessantesten und nützlichsten sind.